資料請求 来場予約

ドリームハウスの
注文住宅

WORKS

施工事例

理想をかなえた
オンリーワンの住まい。

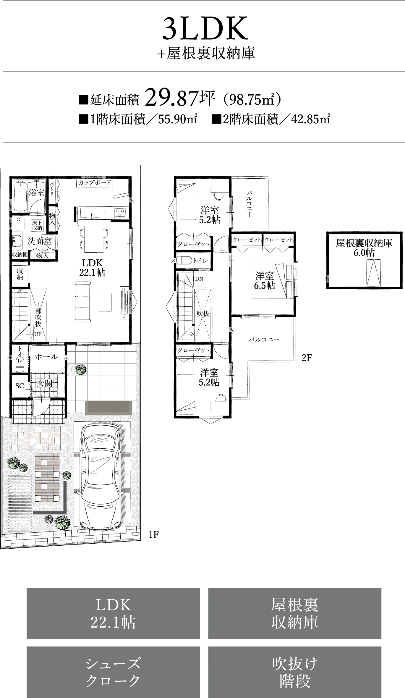
05

開放的な吹抜け階段のある家。

リビングの吹抜け階段が上部からの光を採り入れ、明るく開放的なLDK。リビングと繋がるタイルテラスが空間の広がりを感じさせ、さらに開放感を演出しています。屋根裏収納庫やシューズクローク、パントリーなどの収納も充実しています。

収納をたっぷり備えた使い勝手の良いキッチン

LDKと繋がるテラス

外からの視線を遮るクローズド外構を採用した落ち着きのある外観

開放感のあるLDK

光を採り入れ、家全体を明るくする吹抜け階段

banner